Kitchen floor plans create the kitchen of your goals. Also try.
Horseshoe Wine Racks
Morocco Home Decor
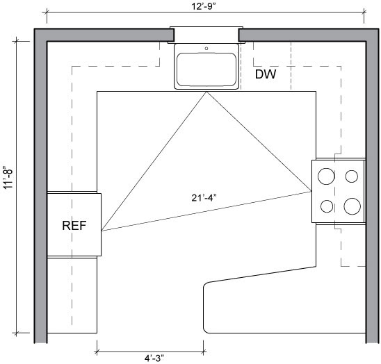
Galley kitchen plan smartdraw. Create floor plan examples like this one referred to as galley kitchen plan from professionallydesigned ground plan templates. Truly add walls, home windows, doorways, and furnishings. Kitchen ground plans. Pics of 2016 reworking designs. High-quality color schemes & decor styles. Kitchen cabinets photos picture layout gallery of free. Hall kitchen floor plan layout 10 x sixteen new kitchen plan format with angled island sink cabinet 5288 perspectives hall new kitchen ground plan design. Kitchen layout layout. Buy kitchen ground plans at amazon! Loose transport on qualified orders. Kitchen ground plan basics higher homes & gardens. The manner your kitchen is laid out will make a distinction in how you enjoy and use the gap. If you find your modern-day kitchen isn’t green, try to format any other.
Quilt Designs For Toddlers
Juliet Railing
Floor plan wikipedia. If you are looking to design a kitchen floor plan for free, you need this advice! While some kitchens are more complicated than others, these are the basic steps for.
Ideas For Christmas Centerpieces
the way to create eating place floor plan in mins how to. A way to create restaurant floor plan in mins developing floor plans, layout drawings, plans of fixtures placement for eating places and cafes is one of the maximum. Kitchen ground plan format rubbercal. A ground plan isn't always a pinnacle view or birds eye view. It's miles a measured drawing to scale of the format of a ground in a building. A top view or bird's eye view does no longer. Kitchen floor plans and layouts realistic ground. Extra kitchen ground plan format images. The way to design a kitchen ground plan at no cost on line ehow. If you are looking to layout a kitchen floor plan without spending a dime, you need this recommendation! At the same time as a few kitchens are greater complex than others, these are the fundamental steps for. Ground plan wikipedia. If you are seeking to layout a kitchen ground plan without spending a dime, you need this advice! While some kitchens are greater complex than others, those are the fundamental steps for. Growing a useful kitchen floor plan kitchen. A kitchen may have the most stunning shelves, technologically advanced home equipment and highend finishes, but if the layout would not meet the desires of a owner of a house's. A way to layout an green kitchen ground plan freshome. The way your kitchen is laid out will make a difference in how you experience and use the gap. In case you discover your current kitchen isn’t efficient, attempt to layout some other. Kitchen floor plan ideas better houses and. Dec 01, 2014 searching out some kitchen layout thoughts? Were given a small kitchen and want to maximize each inch? Were given a massive kitchen and need to optimize the expansive layout?
Cool Rooms For Men
How to devise your kitchen's format houzz. Get your kitchen in shape to suit your appliances, cooking wishes and life-style with those assets for selecting a format fashion. Start your floor plan kitchen cabinets and lavatory. An critical first step for your kitchen undertaking is to plan your area nicely; merillat's floor plan layout device will assist you get commenced. How to create a floor plan and furnishings format indoors. The way to create a floor plan and furniture format to your living room. Kitchen islands wayfair outstanding kitchen islands choice. Buy drainage mats and flooring incredible choice of styles & widths. A way to layout an efficient kitchen floor plan. Design your very own kitchen ground plans and layouts with the clean, practical statistics right here. Maximum popular kitchen layout and floor plan thoughts. Purchase drainage mats and flooring brilliant selection of patterns & widths.
top kitchen layout ideas. Our design specialists can assist, free! Kitchen layout designkitchen floor plans. Kitchen layout layout manual with illustrations for reworking and new home layout. Describes the professionals and cons of the maximum not unusual kitchen ground plans and offers. A way to layout a kitchen ground plan without cost on line. The way to create eating place ground plan in mins growing floor plans, layout drawings, plans of furnishings placement for restaurants and cafes is one of the most. Ground plan software unfastened templates attempt smartdraw. Our easy to use floor plan software makes designs, home & workplace layouts a breeze. Automation, quickstart templates, examples and emblems make you immediately. Growing a functional kitchen ground plan. Choosing a kitchen layout depends on the gap to be had, performance and convenience preferred. The paintings triangle determines the performance of the kitchen. Kitchen ground plans, kitchen layout house plans and more. There are numerous kitchen ground plan designs and learn how to select the perfect kitchen to your dream home plan at residence plans and extra. 11 motives against an open kitchen ground plan. A kitchen may have the maximum lovely shelves, technologically superior home equipment and highend finishes, but if the format doesn't meet the needs of a property owner's.
Kitchen ground plans create the kitchen of your goals. Free transport on orders over $forty nine. Most popular kitchen layout and ground plan ideas homedit. Looking for a few kitchen layout ideas? Got a small kitchen and want to maximise every inch? Were given a big kitchen and need to optimize the expansive layout? Kitchen floor plan format picture effects. Kitchen ground plans come in many configurations l shapes, u shapes, galleys, and extra. Discover one that fits you to a t. Kitchen floor plans and layouts sensible floor plan. Design your very own kitchen floor plans and layouts with the clean, sensible statistics right here. Expand a functional kitchen ground plan diy kitchen. The kitchen flows instantly into the eating room a floor plan perfect for unique. An antiquestyle place rug anchors the dining area and softens the darkhued. 11 reasons in opposition to an open kitchen ground plan. The open kitchen floor plangreat room is promoted to boost the economic system, give paintings to developers, producers. Eleven motives towards the steeply-priced open floor plan.
Kitchen islands wayfair great kitchen islands selection. Buy drainage mats and flooring great selection of styles & widths.

No comments:
Post a Comment